Bellassai & Sigmund

MG-RHEYDT-FÜR DIE GROSSE FAMILIE - SANIERTES STADTHAUS - MODERNE AUSSTATTUNG -KÜCHE -GARTEN -GARAGE

Haus

Zum Kauf

Kaufpreis 399.000 €
Wohnfläche (ca.) 215.48 m²
Grundstück (ca.) 366 m²
Zimmer 8
Bezug ab Nach Absprache
Ort 41239 Mönchengladbach

Kosten

Käuferprovision 2,38% inklusive gesetzl. MwSt
Heizkosten in Nebenkosten enthalten

Objektdaten

Referenz Nr. PS-BB22-5
Objektzustand teilsaniert
Baujahr 1960
Letzte Modernisierung 2014

Energieangaben

Energieausweis liegt vor
Heizungstyp Zentralheizung
Wesentlicher Energieträger Öl
Energieverbrauchskennwert 329.9 kWh/(m²*a)
Energieeffizienzklasse H

Ausstattung

Ausstattungsqualität normal
Gästetoilette Ja
Keller Ja
Einbauküche Ja
Balkon / Terrasse Ja
Garten Ja
Abstellraum Ja
Alarmanlage Ja
Fußbodenbelag Fliesen, Vinylboden
Bad Dusche, Wanne, Fenster

Flächen / Zimmer

Anzahl Zimmer 8
Anzahl Schlafzimmer 5
Anzahl Badezimmer 2
Nutzfläche ca. 45.85 m²
Anzahl Parkplätze 3
Etagenzahl 3

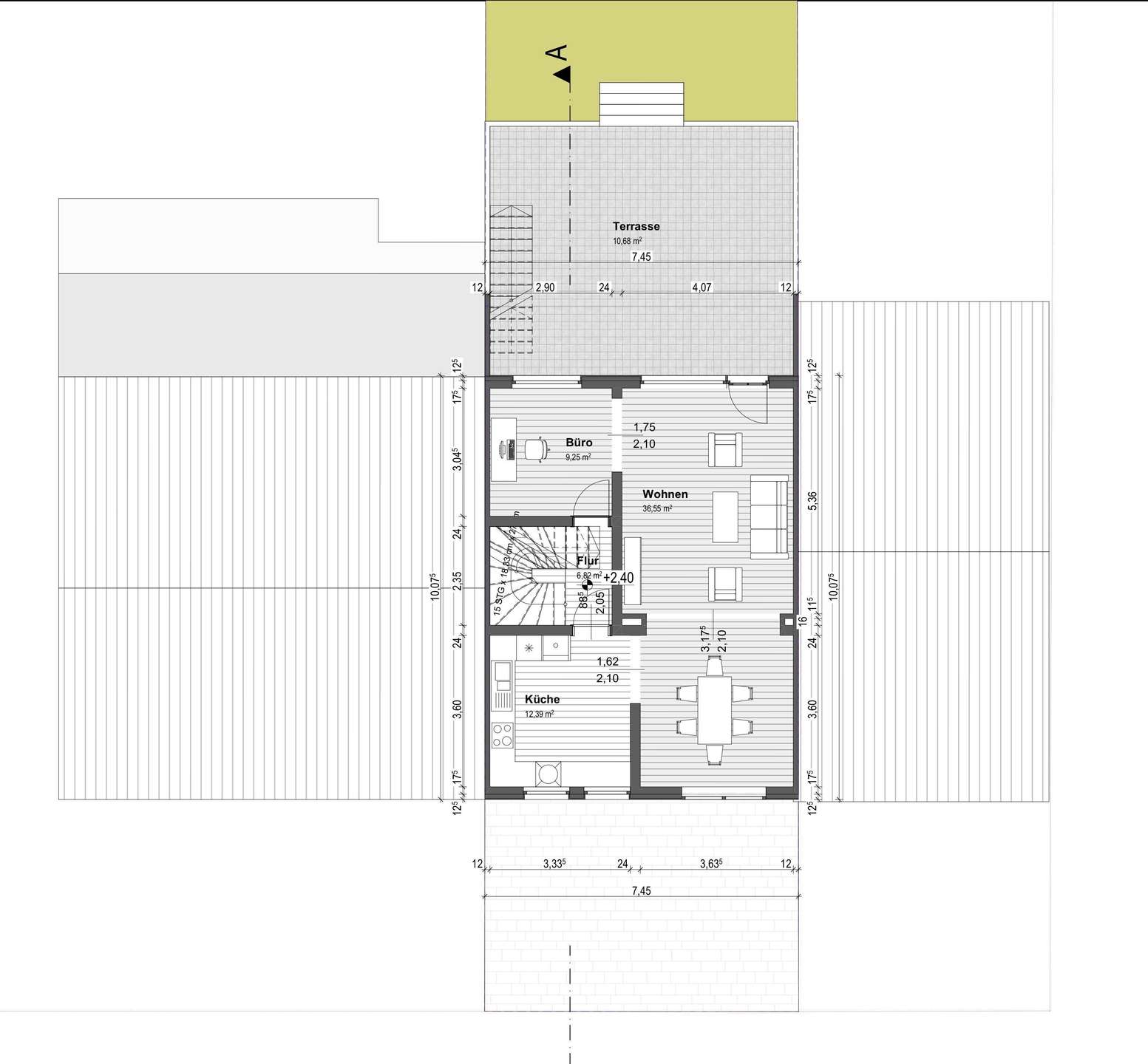
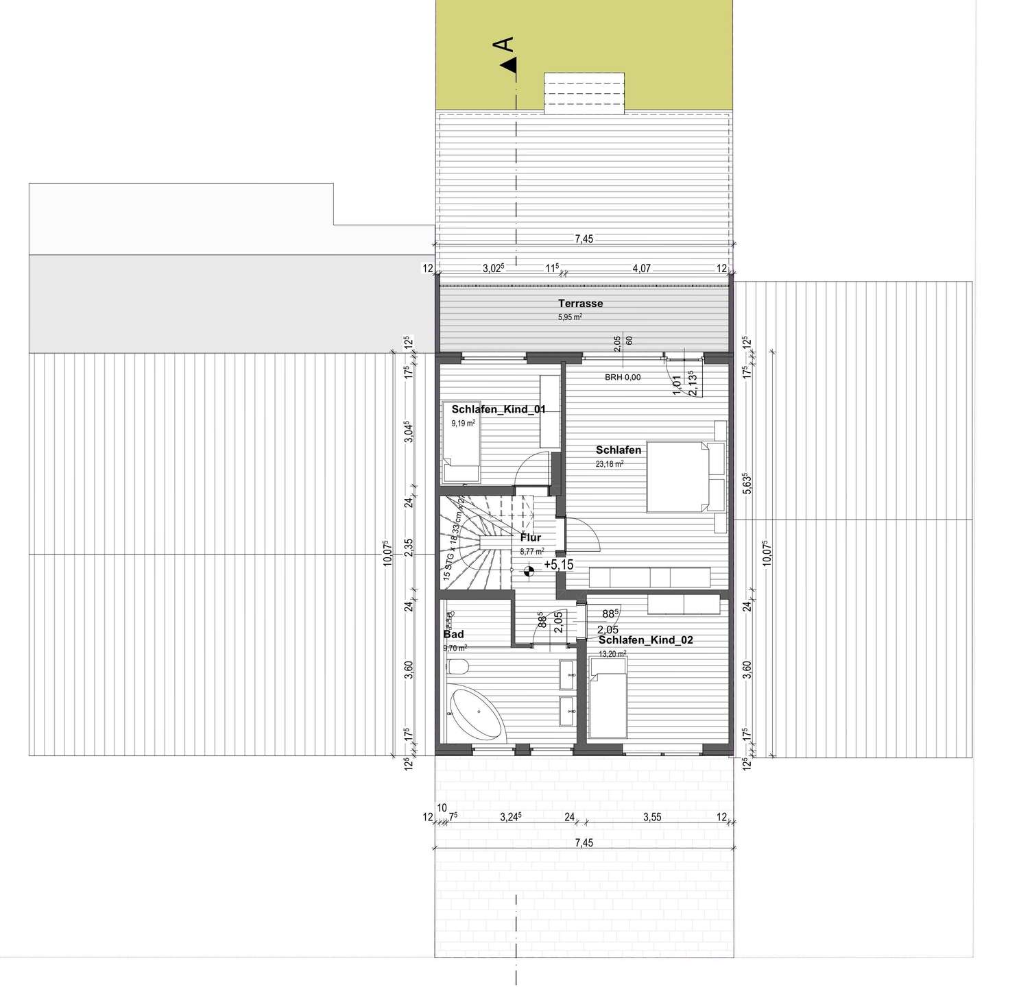
Beschreibung

IN 2014 MODERNISIERTES EINFAMILIENHAUS MIT VIEL PLATZ FÜR DIE FAMILIE Dieses selten gute Angebot richtet sich an alle Familien, die viel Wert auf großzügiges Wohnen, hochwertige Ausstattung und eine große Außenterrasse, sowie viel Gartenfläche legen. Das Raumangebot verteilt sich auf vier Ebenen, plus Spitzboden. Auf der untersten Ebene liegt straßenseitig der Eingangsbereich mit Gäste-WC und viel Platz für Ihre Garderobe, Kinderwagen und anderes, ebenso die ins Haus integrierte Garage mit straßenseitigen 1-2 Außenstellplätzen. Im hinteren Teil des Hauses, aufgrund des Geländegefälles, liegen die Kellerräume mit Zugang zur Garage. Auf der zweiten Ebene finden Sie straßenseitig die Küche mit hochwertiger Einbauküche und Tresen. Der offene Durchgang führt zum Essbereich, der übergeht ins Wohnzimmer mit offenem angrenzenden Büro oder einer Fernsehecke. Vom Wohnzimmer und Büro, liegend auf Gartenniveau, haben Sie Zugang zur mediterranen XXL-Terrasse , die sich über die gesamte Rückfront des Hauses erstreckt. Eine Außentreppe zu den Kellerräumen ist hier ebenfalls angeordnet. Auf der nächsten Ebene liegen drei schöne Schlafzimmer, zwei davon gartenseitig mit Balkon und das hochmoderne Badezimmer mit großer Regendusche und Ganzglastür, großer Eckbadewanne, Doppelwaschtisch mit Unterschrank und Handtuchheizkörper. Im Dachgeschoss, der vierten Ebene, finden Sie noch zwei weitere schöne Zimmer, sowie ein modernes Duschbad vor. Mit dem Einbau einer Treppe, z.Z. ist lediglich eine Bodenluke vorhanden, hätten Sie die Möglichkeit, den schon ausgebauten Spitzboden ebenfalls bequem zu nutzen.

Ausstattung

+ massiv gebautes Stadthaus, Baujahr 1960 + Modernisierung 2014 + Garage, elektrisches Rolltor + 2 Außenstellplätze, gepflasterter Vorgarten + überdachter Eingangsbereich + Gegensprechanlage + Stahlbetontreppen mit Marmorbelag + Edelstahlgeländer + SAT-Schüssel + elektrische Rollläden + neue Fenster 2014 +Bodenbeläge: Fliesen und Vinyl + modernes Gäste WC, weiße Keramik, plus Waschtischunterschrank taupe-farbene Wandfliesen + große moderne weiße Hochglanz Einbauküche mit Küchentresen, integrierte Deckenspots + große hell-geflieste Terrasse, teilüberdacht, mediterrane Farbgestaltung, eingefasst mit kleiner Mauer und 6 Stufen hoch bis auf Gartenniveau + Außentreppe mit Edelstahlgeländer zu den Kellerräumen, abgehend von der Terrasse + die Rasenfläche ist mit seitlicher Bepflanzung eingefasst + im Terrassenbereich Sichtschutzzaun zum Nachbarn + Balkon zur Gartenseite, gefliest mit Edelstahlgeländer + großes modernes Badezimmer mit Eckbadewanne, bodengleicher großer Regendusche mit Ganzglastür, Handtuchheizkörper, großer Waschtisch mit Unterschrank und großem Spiegelschrank, weiße Keramik, schwarze Fliesen, teilweise Mosaikfliesen, Deckenspots +Duschbad im Dachgeschoss mit Dachflächenfenster, gefliest im warmen beige Ton, weiße Keramik, halbrunde Eckdusche mit Ganzglas-Abtrennung, Waschtisch mit Unterschrank + ausgebauter Spitzboden, jedoch noch ohne Treppe, Bodenluke vorhanden + Waschküche mit Ausgussbecken Keller-Außentür, gelbe Fliesen, baujahrsbedingt + weiterer Kellerraum/ Vorrat/ Abstellfläche + Viessmann Heizung, Duo-Parola-E, 1990

Sonstige Hinweise

Wir führen Besichtigungen auch abends und am Wochenende durch. Wir bitten zusätzlich um eine schriftliche Anfrage und beantworten alle Anfragen. Bitte achten Sie auf Ihren SPAM-Ordner! Alle Anfragen werden automatisch mit der Zusendung eines ausführlichen Exposés beantwortet!

Lage der Immobilie

Bolksbuscher Straße 22 41239 Mönchengladbach- Rheydt Rheydt ist ein Stadtteil von Mönchengladbach und wurde 1975 eingemeindet, zur Zeit sind ca. 70.000 Bewohner dort beheimatet. Dieser Stadtteil bietet Familien, wie Berufstätigen optimale Bedingungen. Sie finden hier alle Dinge des täglichen Bedarfs vor: Einkaufsmöglichkeiten, Schulen, Kindergärten, Ärzte und Restaurants. Das Rheydter Zentrum erreichen Sie in 7 Minuten mit dem Auto. Naturnahe Erholung und Freizeitbeschäftigungen, wie joggen, radeln und spazieren gehen, können Sie im Rheydter Stadtwald und im Schmölderpark nachgehen. Mehrere Sportvereine sind in Rheydt vorzufinden, am bekanntesten sind der Fußballverein Rheydter SV und der Hockey Club. Darüber hinaus trägt die U23 der Borussia-Mönchengladbach ihre Spiele im Rheydter Grenzlandstadion aus. Das Schloss Rheydt lädt zu jeder Jahreszeit ein, es ist umgeben von Wald und Wiesen und dem wunderschönen schlosseigenen Park. Diverse Veranstaltungen, wie der Herbstzauber, der Weihnachtsmarkt, sowie die Sommermusik mit lokalen und internationalen Künstlern, erfreuen sich großer Beliebtheit. Der öffentliche Personennahverkehr ist gut ausgebaut und liegt im Tarifgebiet des Verkehrsverbunds Rhein-Ruhr. Die Anbindungen an die Autobahnen A52 und A61 und die Bundesstraßen B230 und B59 sind zügig erreichbar. Somit gelangen Sie leicht in die umliegenden Städte, wie Düsseldorf, Köln, Krefeld, oder Viersen und auch in die Niederlande. Darüber hinaus hat Mönchengladbach-Rheydt weiterhin einen Hauptbahnhof, der auf der Bahnstrecke Aachen-Mönchengladbach, sowie Köln-Ehrenfeld, liegt. Rheydt - ein Stadtteil - mit allen Vorzügen des städtischen Lebens - mit Kleinstadt-Charakter und Naturverbundenheit

Jetzt diese
Immobilie anfragen